


1, Sherbrooke
Modèle Clara – À vendre à Rock Forest, Boisé Fabi
Offert dans le secteur prisé de Rock Forest, au sein du développement Boisé Fabi, le modèle Clara propose une maison unifamiliale au design contemporain et à l’aménagement réfléchi.
Ce modèle se distingue par sa conception fonctionnelle et ses espaces lumineux. La cuisine avec grand îlot et armoires jusqu’au plafond s’intègrent harmonieusement à un espace de vie convivial, tandis que la généreuse fenestration et la porte patio de 6 pieds assurent une luminosité naturelle abondante.
Située à proximité des écoles, commerces et services, la propriété bénéficie d’un environnement paisible, idéal pour s’établir à long terme.
Le modèle Clara représente une opportunité clé en main pour ceux qui souhaitent s’établir dans un secteur de choix, alliant qualité de construction et tranquillité d’esprit.
Un milieu de vie harmonieux, dans un quartier où il fait bon s’installer.
Cuisine contemporaine
Grand îlot
Comptoir de stratifié
Hotte en acier inoxydable
Ligne d'eau pour le frigo
Main courante en bois franc verni
Salle de bain avec bain autoportant & douche 36 ″ X 48 ″ murs en céramique
Porte patio de 6 ′ et grande fenestration
Thermopompe
Revêtements de plancher :
Rez-de-chaussée : flottant & céramique 24 ″ X 24 ″
Escalier : tapis
Sous-sol (en option) : planchette de vinyle
Revêtements extérieurs : vinyle
Portes & fenêtres blanches
Patio 12 ′ X 12 ′
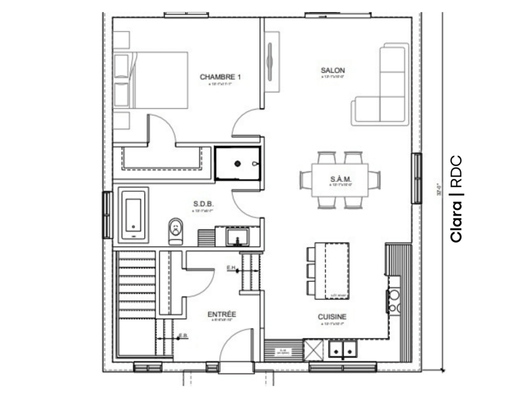
Bâtiment : 28′ x 32′ (896 pi²)
Rez-de-chaussée
Entrée : 6'-6" x 9'-10" (céramique)
Cuisine : 13′-1″ x 10′-7" (flottant)
Salle à manger : 13′-1″ x 10'-0" (flottant)
Salon : 13′-1″ x 10′-0″ (flottant)
Salle de bain : 13'-1" x 5'-7" (céramique)
Chambre #1 : 13'-1" x 11'-1" (flottant)
Étage
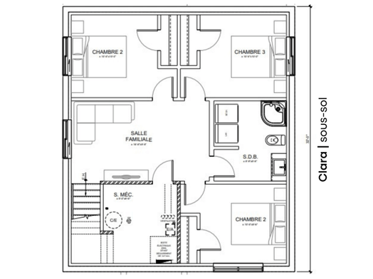
Sous-sol
Chambre #2 : 10'-5" x 10'-0" (planchette vinyle)
Chambre #3 : 10'-5" x 10'-0" (planchette vinyle)
Chambre #4 : 10' -5" x 9'-6" (planchette vinyle)
Séjour : 16'-8" x 9'-8" (planchette vinyle)
Salle de bain : 8'-9" x 9'-8" (tuile vinyle)
Salle mécanique : 9' x 9'-8" (béton)