


+13voir plans et photos

Homère, Sherbrooke
Modèle Belvédère – À vendre au Boisé Fabi, Rock Forest
Un modèle élégant et lumineux, parfaitement adapté à la vie d’aujourd’hui
Offert dans le développement Boisé Fabi, au cœur du secteur recherché de Rock Forest, le modèle Belvédère séduit par son concept à aire ouverte et son aménagement optimisé.
Pensé pour offrir confort et fonctionnalité, il propose des espaces de vie bien définis, baignés de lumière naturelle, dans un style moderne et intemporel.
Située à proximité des écoles, commerces et services, la propriété bénéficie d’un environnement paisible, idéal pour s’établir à long terme.
Le modèle Belvédère représente un choix judicieux pour ceux qui recherchent une propriété clé en main, alliant qualité, emplacement et tranquillité d’esprit.
Cuisine contemporaine
Grand îlot
Comptoir de stratifié
10 luminaires inclus
Armoire au plafond 8’
Hotte en acier inoxydable
Ligne d'eau pour le frigo
Main courante en bois franc verni
Salle d’eau au rez-de-chaussée
Salle de bain avec bain autoportant & douche 36 ″ X 48 ″ murs en céramique
Porte patio de 6 ′
Thermopompe
Revêtements de plancher :
Rez-de-chaussée & étage : flottant & céramique 24 ″ X 24 ″
Escalier : tapis
Sous-sol (en option) : planchette de vinyle
Revêtements extérieurs : vinyle & pierre
Portes & fenêtres blanches
Patio 12 ′ X 12 ′
Bâtiment : 21′ x 35′ (1400 pi²)
Rez-de-chaussée
Entrée : 7′-8″ x 4′-10″ (céramique)
Cuisine : 19′-5″ x 13′-7″ (flottant)
Salle à manger : 12′-1″ x 10'-8″ (flottant)
Salon : 9′-2″ x 14′-5″ (flottant)
Salle d'eau : 5'-11″ x 4'-6″ (céramique)
Étage
Chambre #1 : 9'-6″ x 11'-2″ (flottant)
Chambre #2 : 9'-6″ x 8'-10″ (flottant)
Chambre #3 : 9'-0″ x 9'-6″ (flottant)
Salle de bain : 7'-8″ x 8'-7″ (céramique)
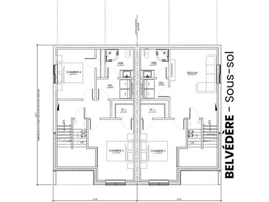
Sous-sol
Chambre #4 : 11'-4″ x 12'-6″ (planchette vinyle)
Chambre #5 : 11'-4″ x 15'-2″ (planchette vinyle)
Salle de lavage : 7'-3″ x 5'-0″ (tuile vinyle)
Salle de bain : 7'-3″ x 7'-1″ (tuile vinyle)